西安厂房出售 泾渭新城厂房出售 单层钢构 2层 3层厂房1200平起 大平层600平起售 | 中南高科·西安经开创新智造产业园
西安厂房出售 泾渭新城厂房出售 单层钢构 2层 3层厂房1200平起 大平层600平起售
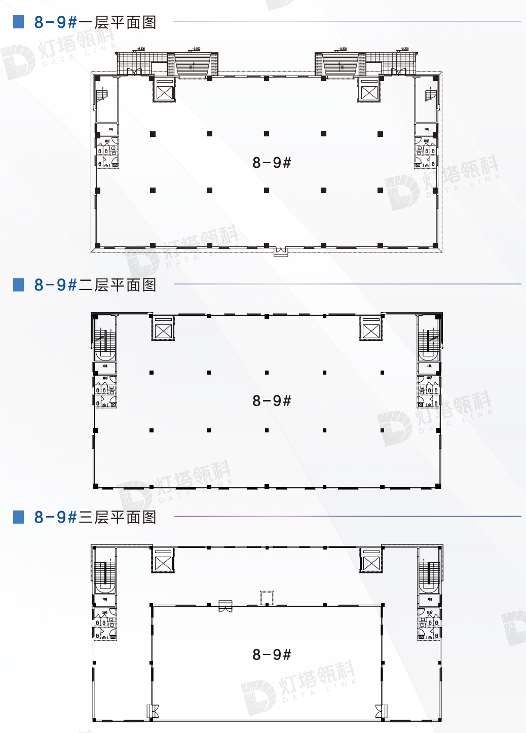
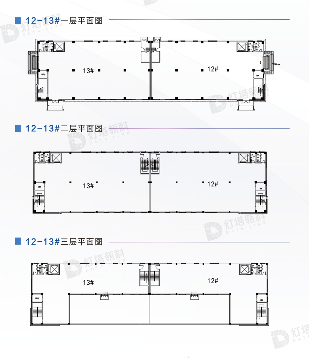
中南高科·经开创新智造产业园位于西安市经开区泾渭新城渭环东路与纬四路十字东北角,总建筑面积约11万平方米,占地面积143亩,容积率1.57。园区聚焦新一代信息技术、高端装备制造、新材料、新能源汽车及新能源等产业领域,规划布局生产智造区、研发办公区、孵化创业区与配套中心,提供单层钢结构厂房、2.5层框架厂房及定制化厂房等多种产品形态,致力于打造集生产制造、研发设计、中试转化、企业总部和展示功能于一体的高科技产业集聚平台。
优势及亮点:
园区区位交通便捷,配套成熟,周边物流资源丰富,覆盖京东、德邦、中通等多类快递物流服务,便于企业仓储运输;
产品类型多样,包括独栋及钢构厂房,层高蕞高达12米,可满足不同企业生产及研发需求;
均价仅4466元/㎡,具高性价比,且物业费用合理,工业用电执行国家电网峰谷标准,成本可控;
产业定位清晰,聚焦先进制造业与战略新兴产业,形成完整产业链生态,助力企业协同发展;







全国200+产业园厂房招商中
总部招商中心 13524678515 葛毅明更多厂房土地 请点击【园区产业招商】
欢迎关注、点赞、转发
欢迎关注、点赞、转发
免责声明:
1.部分文字和图片来源于网络不对相关图片内容享有任何权利
2.我方重申:所有转载的文章、图片、音频视频文件等资料知识产权归该权利人所有,但因技术能力有限无法查得知识产权来源而无法直接与版权人联系授权事宜,若转载图片可能存在引用不当或版权争议因素,请相关权利方及时通知我们,以便我方迅速删除相关图文内容,避免给双方造成不必要的损失;
3.因文章中文字和图片之间亦无必然联系,仅供读者参考。
文章来源《网络》

产业招商/厂房土地租售:400 0123 021
或微信/手机:13524678515; 13524678515; 13524678515
请说明您的需求、用途、税收、公司、联系人、手机号,以便快速帮您对接资源。
长按/扫一扫加葛毅明的微信号
扫一扫关注公众号
扫描二维码推送至手机访问。
版权声明:本文由中国产业园区招商网发布,如需转载请注明出处。部份内容收集于网络,如有不妥之处请联系我们删除 13524678515 仅微信


















