惠州仲恺超低容积率全独栋厂房出售 朗峰3C数字科技园 3200平起售
朗峰3C数字科技园
------惠州仲恺超低2.05容积率全独栋产品
项目基础信息
•项目名称:朗峰3C数字科技园
•占地面积:41764㎡
•建筑面积:86265㎡
•土地性质:全新50年独立产权,一户一证
•项目位置:惠州市仲恺区陈江仲恺大道边(澄海村旁)
•产业定位:以3C电子类产品及其供应链上下游相关产品为主导,兼具智能终端、超高清视频显示、能源电子、智能家居等其他新兴产业



地域优势
【区域】地处全国首批国家级高新技术产业开发区之一的惠州仲恺高新区。南靠深圳,西接东莞,毗邻广州和香港,属粤港澳大湾区东部核心区域、深莞惠中心地带。
【区位】项目位于全省首批5家人工智能产业园之一的广东(仲恺)人工智能产业园,属于惠州重点打造的7个千亿级工业园区之一。片区是建设惠州万亿级电子信息产业集群核心引擎,国家一流高新区的重大战略发展平台。
【区位生活配套展示】



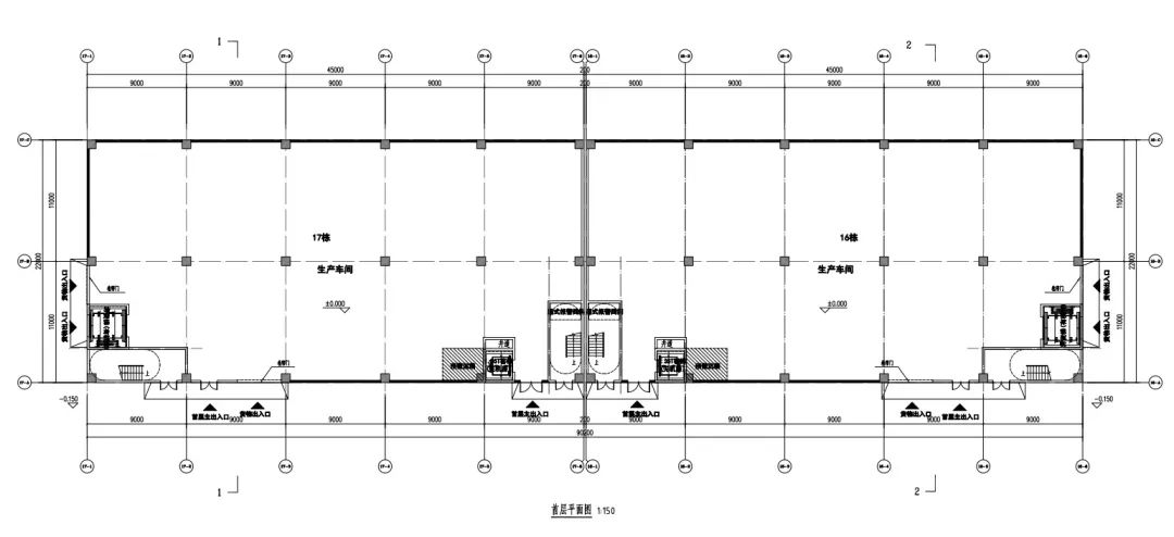
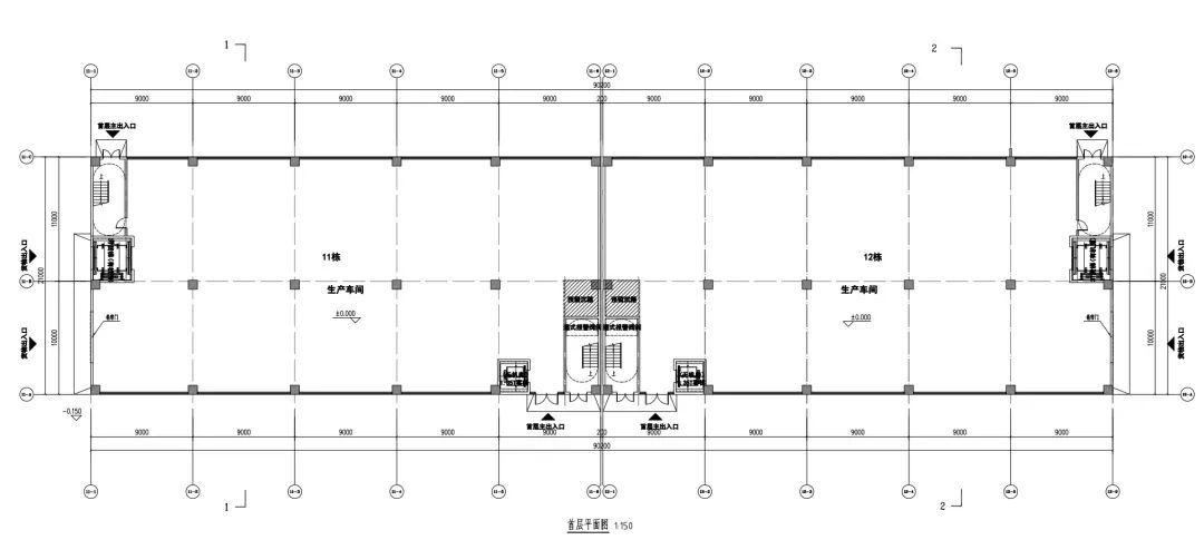
【项目平面及参数】
产品一:4.2层独栋厂房1-9#参数: 1F:7.8m 、2F:6.2m、3F-4F:4.8m、0.2F(5F)4.0m承重: 1F:2T/m² 、2F:1.2T/m²、3F-4F:0.8T/m²、天面层0.5T/m²
产品二:5.5层独栋厂房10-15#参数: 1F:7.8m 、2F:6.2m、3F-5F:4.5m、0.5F(6F)4.0m承重: 1F:2T/m² 、2F:1.2T/m²、3F-5F:0.8T/m²、天面层0.5T/m²
产品三:6.2层独栋厂房16-17#参数: 1F:7.8m 、2F:6.2m、3F-6F:5.5m、0.5F(7F)4.0m承重: 1F:2T/m² 、2F:2T/m²、3F-6F:0.8T/m²、天面层0.5T/m²





研发办公厂房土地招商咨询 以下微信
免责声明:
1.部分文字和图片来源于网络不对相关图片内容享有任何权利
2.我方重申:所有转载的文章、图片、音频视频文件等资料知识产权归该权利人所有,但因技术能力有限无法查得知识产权来源而无法直接与版权人联系授权事宜,若转载图片可能存在引用不当或版权争议因素,请相关权利方及时通知我们,以便我方迅速删除相关图文内容,避免给双方造成不必要的损失;
3.因文章中文字和图片之间亦无必然联系,仅供读者参考。
文章来源《网络》

产业招商/厂房土地租售:400 0123 021
或微信/手机:13524678515; 13524678515; 13524678515
请说明您的需求、用途、税收、公司、联系人、手机号,以便快速帮您对接资源。
长按/扫一扫加葛毅明的微信号
扫一扫关注公众号
扫描二维码推送至手机访问。
版权声明:本文由中国产业园区招商网发布,如需转载请注明出处。部份内容收集于网络,如有不妥之处请联系我们删除 13524678515 仅微信
















