武汉市东湖新技术开发区 厂房出租 1200平起租 高新网谷
项目区位:武汉市东湖新技术开发区佛祖岭三路16号(光谷自贸区)
品牌物业:招商物业五星级服务
园区配套:公共会议室+智慧餐厅
二、项目介绍
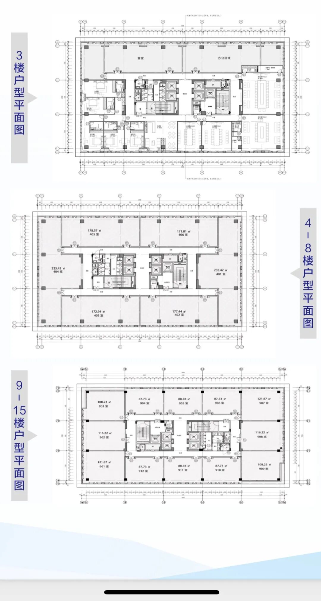
房号:2号楼
面积:18000方
楼层:总楼层15层,单层1200平
物业:6元/平米/月,空调24小时自控
电梯+1,公区精装,内部简装
出租面积:12000平











配套层:




产业资源:所在佛祖岭片区属于光谷的光电子信息产业园(简称“光电园”),光电园是光谷“芯-屏-端-网”万亿级光电子信息产业集群的发源地,光电园佛祖岭科技园企业党委和佛祖岭科技园工会联合会都设在高新网谷。
交通区位:
光谷核芯成熟片区公
交站:距离81米,步行约2分钟
公交站:高新四路佛祖岭三路
途经公交车:334路、751路,距离81米
公交站:流芳园横路佛祖岭三路
途经公交车:787路,距离488米
公交站:光谷三路高新四路
途经公交车:334路、907路,距离868米
途经三站即可换成有轨电车L2,5站即达11号线地铁
公交直通佛祖岭2号线地铁,畅达主城区
项目优势:周边有长江电气、701所、719所、中国兵器集团下属的武汉重型机床厂、中国航天集团下属的武汉长江动力集团、联想产业基地、烽火科技、中芯国际、长飞光纤、富士康产业园、武汉中原电子等国内知名企业,同时聚集了世界500强圣戈班、施耐德、李尔汽车,《财富》100强企业霍尼韦尔、上市公司康明斯等优秀外企。




研发办公厂房土地招商咨询 以下微信
免责声明:
1.部分文字和图片来源于网络不对相关图片内容享有任何权利
2.我方重申:所有转载的文章、图片、音频视频文件等资料知识产权归该权利人所有,但因技术能力有限无法查得知识产权来源而无法直接与版权人联系授权事宜,若转载图片可能存在引用不当或版权争议因素,请相关权利方及时通知我们,以便我方迅速删除相关图文内容,避免给双方造成不必要的损失;
3.因文章中文字和图片之间亦无必然联系,仅供读者参考。
文章来源《网络》

产业招商/厂房土地租售:400 0123 021
或微信/手机:13524678515; 13524678515; 13524678515
请说明您的需求、用途、税收、公司、联系人、手机号,以便快速帮您对接资源。
长按/扫一扫加葛毅明的微信号
扫一扫关注公众号
扫描二维码推送至手机访问。
版权声明:本文由中国产业园区招商网发布,如需转载请注明出处。部份内容收集于网络,如有不妥之处请联系我们删除 13524678515 仅微信


















